„Кий Естейт“ Ви предлага прекрасна възможност да се сдобиете с жилище в комплекс с контролиран достъп в предпочитания за живеене квартал Бояна, местност Гърдова глава. Чудесна локация сред зеленина и тишина. Районът е предимно с ниско строителство, бърз достъп до центъра на София, в близост има училища, детски градини и магазини, всичко необходимо този комплекс да се превърне в уютно семейно жилище, предлагащ удобство на една ръка разстояние или инвестиционен имот с отлична възвръщаемост. Сградите ще бъдат изградени с висококачествени материали без компромис в целия процес на строителството, естествена светлина във всички помещения на апартаментите благодарение на френските прозорци, които са заложени в проекта, луксозни общи части носещи комфорт на своите обитателите, а за най-малките ще има и зони за игри и забавления.
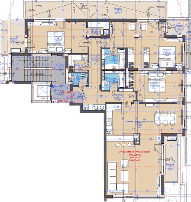
Апартамент А8 се намира в сграда А на четвърти етаж, с чиста площ от 190,72 кв.м., а с общите части е 213,31кв.м., със следното функционално разпределение: антре с площ от 6,46 кв.м., коридор, който ни отвежда към дневната и стаята за гости е с площ от 3,31 кв.м., дневна, трапезария и кухня с обща площ от 54,36 кв.м. с излаз на тераса с площ от 4,80 кв.м. , втори коридор, който ни отвежда към спалните с площ от 5,53 кв.м. родителска спалня с площ от по 26,74 кв.м. с място за голям дрешник, собствена баня с тоалетна с площ от 4,33 кв.м., втора спалня с площ от 18,12 кв.м. с дрешник с площ от 2,39 кв.м., от двете големи спални се излиза на тераса с площ от 25,47 кв.м., трета спалня или стая за гости, която е непосредствено до дневната част е с площ от 15,81 кв.м., втора баня с тоалетна с площ от 3,94 кв.м. , отделно тоалетна с площ от 1,99 кв.м. и дрешник в коридора с площ от 3,27 кв.м.
За ваше удобство прилагаме и схема с разпределението на имота.
Към всеки апартамент може да се закупи подземно паркомясто или подземен гараж на отделна цена с топла връзка към апартаментите.
Начален етап на строителство, предимство за избор на разпределения и индивидуални подобрения.
Гъвкава схема на плащане спрямо желанията на клиентите.
В сградата разполагаме и с други апартаменти- двустайни, тристайни и четиристайни с двор или тераси.
За огледи и повече информация: Радка Чиликова 0886601225
























