Кий Естейт Ви предлага мезонет в новострояща се сграда в Дружба 1, комуникативна локация в близост до хранителни магазини, метростанция, училища, детски градини, парк Дружба . Сградата ще бъде завършена с висококачествени материали и модерни общи части. Апартаментите са проектирани с малък процент общи части , функционално разпределение и просторни стаи.
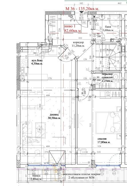
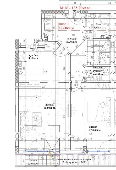
Предлаганият апартамент 36 е със застроена площ от 135,20 кв.м., а с общите части е 145,93 кв.м. със следното разпределение:
Ниво 1: коридор, кухненски бокс, с трапезария и дневна с излаз на тераса, голяма спалня, баня с тоалетна, мокро помещение, стълбище към втория етаж с площ от 82,60 кв.м.
Ниво 2: антре, спалня, кабинет, баня с тоалетна с площ от 52,60 кв.м.
За ваше удобство прилагаме и схема с разпределението на апартамента.
Към апартамента може да се закупи и подземно паркомясто на отделна цена от 20000 евро.
Гъвкави схеми на плащане спрямо нуждите на клиентите.
В сградата предлагаме и други апартаменти на различни етажи и разпределения.
За огледи и повече информация: Радка Чиликова 0886601225












