БЕЗ КОМИСИОННА ОТ СТРАНА НА КУПУВАЧА!
Кий Естейт ви представя новото бижу в портфолиото на доказан строител. Трапезица Резиденс сграда с модерна визия с търговски и офис пространства, строителство без компромис във всеки етап, спокойствие за вашата инвестиция или бъдещ дом. Сградата е с начален етап на строителство, което предлага избор на студия, двустайни, тристайни и четиристайни апартаменти с комфортни разпределения, светли и просторни помещения.
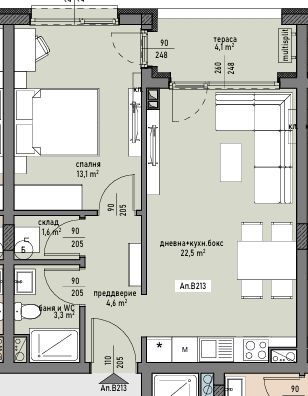
Апартамент В213- находящ се на четвърти етаж, с площ от 68,45 кв.м. с общи части, а застроената площ на имота е 58,30 кв.м. състоящ се от хол, кухня и трапезария с площ от 22,50 кв.м., спалня с площ от 13,10 кв.м. като от двете помещения се излиза на тераса с площ от 4,10 кв.м. , баня с тоалетна 3,30 кв.м., склад или мокро помещение 1,60 кв.м. и коридор 4,60 кв.м. За ваше удобство прилагаме и схема с разпределение на имота.
Локация с бърз достъп до центъра на града, в близост до големи вериги хранителни магазини. Локация с потенциал! Възможност за покупка на подземни паркоместа на цена от 20000 евро. Срок за завършване средата на 2028 година. Различни схеми на плащане, спрямо нуждите на клиента.
За повече информация свържете се с нас: Радка Чиликова 0886601225














